销售热线: 180-2468-7266
180-2468-7266
180-2468-7266
服装综合人工模拟舱需模拟自然界不同的温湿度、降雪、淋雨、吹风等试验环境状态,在实验室内测试人体服装材料的各种性能指标。
1.1 产品名称 | 气候综合环境模拟试验室 |
1.2 产品型号 | CZ-ZH-19800E |
1.3 试验箱内容积 | 19.8m3 |
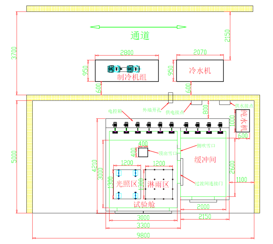
1.4 试验箱内尺寸(mm) | 3000×2100×3000 W×H×D |
1.5 缓冲间内容积 | 10.92m3 |
1.6 缓冲间内尺寸(mm) | 2000×2100×2600 W×H×D |
1.7 外形空间(mm) | 约5450×2500×4210 W×H×D 注:设备外尺寸不包含冷冻机组柜、冷水机、纯水机尺寸,冷冻机组及冷水机外置室外通道。整体外尺寸以实际尺寸为准 |
1.8 冷冻机组尺寸(mm) | 约2800×1950×950 W×H×D |
1.9 冷水机尺寸(mm) | 约2100×1950×950 W×H×D |
1.10 纯水机尺寸(mm) | 约650×1300×850 W×H×D |
1.11 设备安装布局 |
|
1.12 重 量 | 约8.5吨 |
1.13 工作噪音 | ≤70db在机台正前方离机台1米并离地面1.2米处测量 |
1. 设备功率、电流和供电电源 | |
2.1 设备总功率 | 装机总恒功率105 KW,最大运行功率65KW |
2.1 最大工作电流 | 98A | |
2.2 供电条件和电源
| AC380V三相四线制+保护接地;电压允许波动范围±10%V; 频率允许波动范围50±0.5HZ;TN-S方式供电或TT方式供电 保护地线接地电阻小于4Ω 要求用户在安装现场为设备配置相应容量的空气或动力开关,并且此开关必须独立控制本设备使用,室箱内放置通电样品时,样品电源请使用外加电源,不得直接使用本机电源; | |
1. 设备主要技术参数 | ||
3.1 缓冲间温度范围 | -10℃~+10℃ | |
3.2 试验舱测试模式 | 温湿度测试模式(包含高温、低温、湿度控制)、光照测试模式、降雨测试模式、降雪测试模式、吹风测试模式可自由设定 | |
3.3 试验舱温湿度测试条件 | 温度范围 | -50~70℃ |
3.4 | 湿度范围 |
图中红色区为光照条件湿度范围,蓝色区为黑暗湿度范围 |
3.5 | 升降温速率 | 温度变化速率≤1℃/min 全程空载平均条件下,试验箱空间上风口处安装温度监测传感器; |
3.6 试验舱风速测试条件 | 吹风形式 | 侧吹风光照条件风速:0.5 m/s~1.5 m/s |
3.7 | 风口面积 | 200×300m(宽×高) |
3.8 | 风速范围 | 0~20m/S截面积风速可调;全程空载; 光照条件风速:0.5 m/s~1.5 m/s 注:风速传感器位于侧出雪口200mm~300mm之间测量; |
DETAILS|产品详细介绍

执行与满足标准及试验方法
GB/T 2423.1-2008/IEC6008-2-1-2007电工电子产品环境试验第2部分试验方法试验A低温
GB/T 2423.2-2008 电工电子产品环境试验 第2部分:试验方法 试验B:高温
GJB150.3A-2009 高温试验方法
GJB150.4A-2009 低温试验方法
GB/T2423.22-2008电工电子产品环境试验 第2部分 试验方法 试验Nb:规定温度变化速率的温度变化
GB/T 2423.24-2013/IEC 60068-2-5:2010 环境试验 第2部分试验方法 试验Sa模拟地面上的太阳辐射及其试验导则
GB/T10586-2006湿热试验箱技术条件
GB/T5170.9-2008电工电子产品环境试验设备检验方法 太阳辐射试验设备


